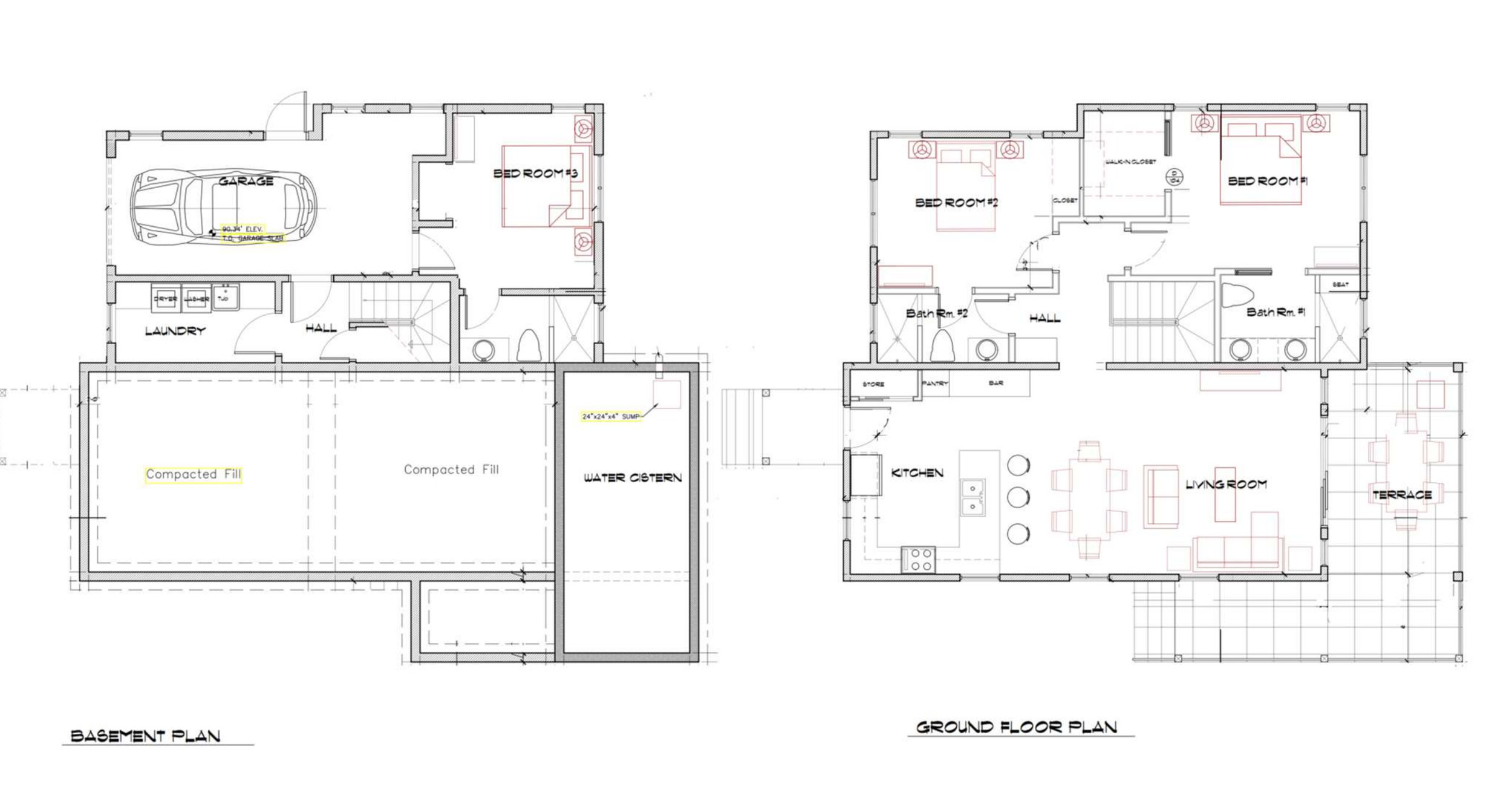
Coconut Villa
Detached Villa
Beds: 3
Stories: 2
Gross Building Area: 2,095 sq ft
Price: Available for long-term Rental
Detached Villa
Beds: 3
Stories: 2
Gross Building Area: 2,095 sq ft
Price: Available for long-term Rental